Marine Class A60 Welded Fireproof Rectangular Window
[Search Related Products]
Marine Class A60 Welded Fireproof Rectangular Window
Made with aluminum or steel, this fire proof widow is applicable for accommodations with required fire rating A60. Certificates about this fire proof rectangular window are CCS, DNV, BV, LR, KR, and NK. To meet customers¡¯ different requirements, we can offer OEM service.
Drawing and specifications:
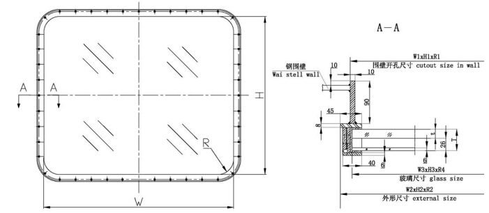
Drawing of Class A60 Welded Fireproof Rectangular Window
mm
|
Nominal size W¡ÁH¡ÁR |
Size of opening W1¡ÁH1¡ÁR1 |
External size W2¡Áh2¡ÁR2 |
Glass size W3¡ÁH3¡ÁR3 |
Glass thickness
|
|||||
|
E(t)+20+6=T |
F(t)+20+6=T |
||||||||
|
300¡Á425 |
R50 |
352¡Á477 |
R76
|
440¡Á565 |
R120 |
340¡Á465 |
R70
|
(8)+20+6=34 |
(10)+20+6=36 |
|
355¡Á500 |
407¡Á552 |
495¡Á640 |
395¡Á540 |
(8)+20+6=34 |
(10)+20+6=36 |
||||
|
400¡Á560 |
452¡Á612 |
540¡Á700 |
440¡Á600 |
(8)+20+6=34 |
(12)+20+6=38 |
||||
|
450¡Á630 |
R100 |
502¡Á682 |
R126 |
590¡Á770 |
R170 |
490¡Á670 |
R120 |
(8)+20+6=34 |
(12)+20+6=38 |
|
500¡Á710 |
552¡Á762 |
640¡Á850 |
540¡Á750 |
(10)+20+6=36 |
(15)+20+6=41 |
||||
|
560¡Á800 |
612¡Á852 |
700¡Á940 |
600¡Á840 |
(10)+20+6=36 |
(15)+20+6=41 |
||||
|
900¡Á630 |
952¡Á682 |
1040¡Á770 |
940¡Á670 |
(12)+20+6=38 |
(19)+20+6=45 |
||||
|
1000¡Á710 |
1052¡Á762 |
1140¡Á850 |
1040¡Á750 |
(12)+20+6=38 |
(19)+20+6=45 |
||||
|
1100¡Á800 |
1152¡Á852 |
1240¡Á940 |
1140¡Á840 |
(15)+20+6=41 |
(19)+20+6=45 |
||||
|
1200¡Á800 |
1252¡Á852 |
1340¡Á940 |
1240¡Á840 |
(15)+20+6=41 |
(19)+20+6=45 |
||||
|
1600¡Á800 |
1652¡Á852 |
1740¡Á940 |
1640¡Á840 |
(15)+20+6=41 |
(19)+20+6=45 |
||||
Identification example:
A60 welded fireproof rectangular window with clear size of 1200¡Á800mm----A60 welded fireproof rectangular window 1200¡Á800
Product showing:
Steel A60 Welded Fire Proof Rectangular Window
Brass A60 Welded Fire Resistant Rectangular Window
Certificate:














































