Aluminum Single Sliding Window for Ship
[Search Related Products]
Aluminum Single Sliding Window for Ship
Mainly made with aluminum, this product is a fixed rectangular window. It has good tightness and light weight. It is used for various ships. Only one window sash of it can be moved. We offer two types of this aluminum single sliding window: type AF and type AY. We supply multiple sizes to meet clients¡¯ demand, and we can also make a change according to customers¡¯ requirements.
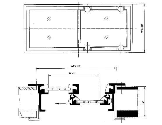
Drawing and specifications:
Drawing of Aluminum Single Sliding Window for Ship
|
Type |
Code |
Size of clear(mm) w¡Áh |
External size(mm) W1¡Áh1 |
Size of opening(mm) w2¡Áh2 |
Depth of frame D |
|
Square angle window
Round angle window
|
AF
AY
|
500¡Á300 |
600¡Á400 |
558¡Á358 |
80-120 |
|
700¡Á400 |
800¡Á500 |
758¡Á458 |
|||
|
800¡Á500 |
900¡Á600 |
858¡Á558 |
|||
|
900¡Á600 |
1000¡Á700 |
958¡Á658 |
|||
|
1000¡Á700 |
1100¡Á800 |
1058¡Á758 |
|||
|
1200¡Á800 |
1300¡Á900 |
1258¡Á858 |
|||
|
1400¡Á800 |
1500¡Á900 |
1458¡Á858 |
Product showing:
Marine Aluminum Single Sliding Rectangular Window (Model: HS-ASW002 )














































