Column Mounted Cantilever Crane
[Search Related Products]
Column Mounted Cantilever Crane
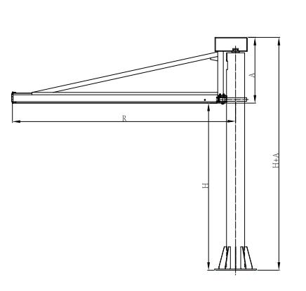
The work intensity of cantilever crane is light. It consists of column, rotary arm, rotary bearing and pneumatic hoist. Column bottom is fixed on the concrete foundation with anchor bolt, and the jib can be driven by hand. Pnaumatic hoist can run along the straight line on the slewing beam, and lift or lower objects. The column is made from high quality seamless steel pipe and cold rolled square tube.
Product Features:
1. It can rotate for 270 degrees or 360 degerrs, and the rotate angle is changeable.
2. Suitable for the indoor and outdoor environment.
3. Easy installation
4. Cover a small area, high utilition rate.
Specification£º
|
Model |
Capacity |
Track |
Rotary Angle |
Lifting Height |
A |
Slewing Method |
|
kg |
H(mm) |
mm |
||||
|
HS-025 |
250 |
KBK-¢ò |
360¡ã |
2000,2500 3000,4000 |
920 |
Manual |
|
HS-050 |
500 |
KBK-¢ò |
360¡ã |
1180 |
Manual |
|
|
HS-100 |
1000 |
KBK-¢ò |
360¡ã |
1340 |
Manual |
Sketch of Column Mounted Cantilever Crane
|
Photos of Column Mounted Cantilever Crane |
|
|
|





























