Bronze Stop Valve
[Search Related Products]
Introduction:
This product is used for ship repair and shipbuilding, and can be used for seawater, fresh water, lubricating oil, fuel oil and steam with temperature less than 250 degrees.
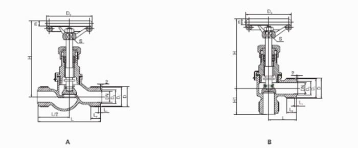
Outline Drawing:
Main Parameters:
Certifications:



























































