Marine Steel Inclined Ladder
[Search Related Products]
Marine Steel Inclined Ladder
This marine ladder is inclined and made of steel. It can be used for the weather deck, engine room, cargo hold, and accommodation cabin on various vessels. We can supply two models of this marine inclined ladder: model A-with angle bar frame, model B-with bulb plate frame. This steel inclined ladder is approved by the GB4444-84 standard. Certificates like CCS, DNV, BV, LR, KR, NK, etc can be offered according to customer¡¯s requirements.
Features:
1. Application: used for the weather deck, engine room, cargo hold and accommodation cabin of various vessels
2. Standard: GB4444-84
3. Certificate: CCS, ABS, KR, NK, DNV, LR, RINA, etc.
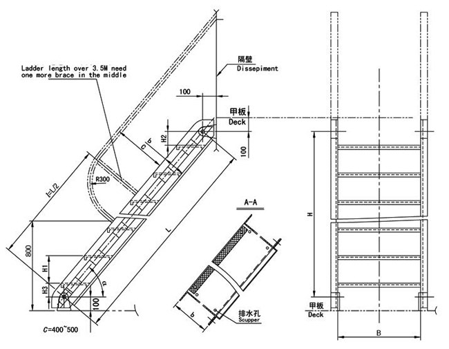
4. Note: The diagram shows the structure of type A inclined ladder, and the type B is similar to the type A while changing the ladder frame from angle bars to bulb plates
Drawing and specifications:
Drawing of Marine Steel Inclined Ladder
|
Type |
Inclination (a) |
B (mm) |
H (mm) |
L (mm) |
|
A & B |
45¡ã |
700, 800 |
400-3500 |
283-4667 |
|
50¡ã , 55¡ã, 60¡ã |
500, 600 |
400-3400 |
261-3916 |
|
|
700, 800 |
400-4400 |
261-4961 |
||
|
65¡ã, 70¡ã |
400, 500, 600 |
500-3500 |
331-3641 |
Identification example:
Inclination angle a=50¡ã, width of ladder B=600mm and length of ladder L=1044mm for marine steel inclined ladder----marine steel inclined ladder 50¡ã¡Á600¡Á1044 GB4444-84
Product displaying:
Hot Dip Galvanized Steel Inclined Ship Ladder
Vessel Steel Inclined Ladder
Boat Steel Inclining Ladder









































