H120 Fire Door
[Search Related Products]
H120 Fire Door
This door is designed and manufactures following the standard of ISO. It is suitable for ships which are used to do high dangerous tasks. It is a kind of H-fire rated door. H-fire rated items are tested with hydrocarbon fire curve. Compared with A-fire rated door, the exact difference is the temperate during the testing procedure. H-fire rated doors and walls are tested at higher temperatures in a longer time period. So it can defense special fire disasters and sudden fire hazards. This door can be fire-resistant for 2 hours which provides people precious time to escape disasters. There are two types of H120 fire door: type A is H120 fire sliding door, and type B is H120 hinged door.
Features
▪ Type: hinged or sliding
▪ H-fire rating
▪ To meet the standard of ISO-T/R834-3 and CB/T 3234-2011
▪ Fire-resistant time :120 minutes, fire-resistant temperature: 1100¡æ,the temperature rising time: 120 minutes
▪ Suitable for ships which are engaged in high dangerous tasks
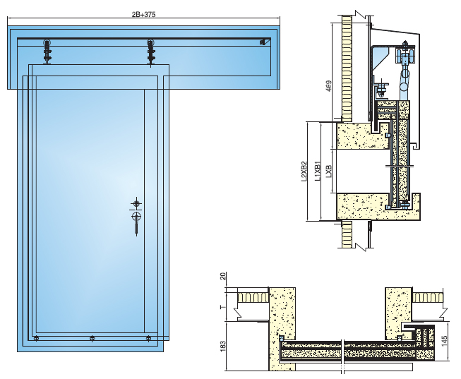
TYPE A
Drawing of H120 Fire Sliding Door
Specifications of H120 Fire Sliding Door
TYPE B
Drawing of H120 Fire Hinged Door
Specifications of H120 Fire Hinged Door
Pictures of H120 Fire Door
H120 Single-Leaf Fire Door
H120 Double-Leaf Fire Door










































































