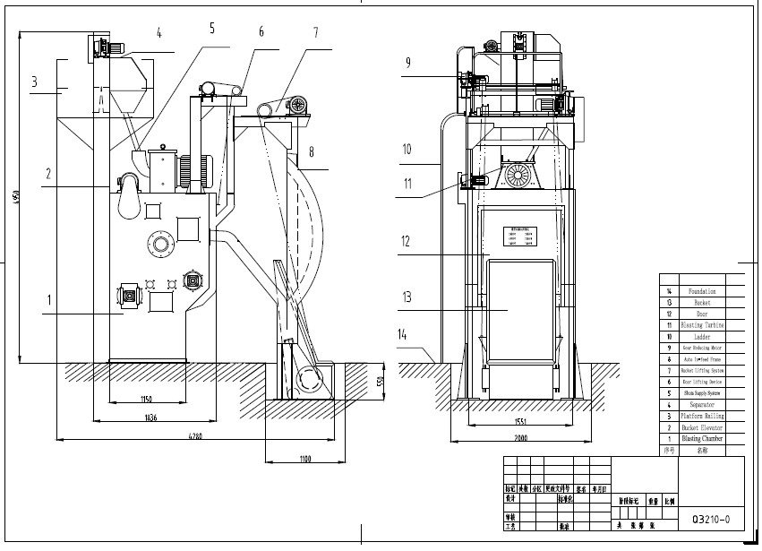
Q3210 Abrating Cleaning Chamber
[Search Related Products]
Q3210 Abrating Cleaning Chamber
This type abrating cleaning chamber are the most universal among all shot blasters as their design makes them suitable for processing parts of varying sizes in bulk loads. Work pieces from small to big metal parts or casting parts can be blasted in these machines.
The machine consists of an endless conveyor belt with high resistance to wear, abrasive separator and dust collector. These type abrating cleaning chamber are very easy to operate. The process starts with the loading of the parts on the belt either manually or through an automatic loading system. Once the door is closed the blasting cycle initiates. The wheels and the belt start spinning producing a continuous rotation of the parts ensuring that all components are exposed to the shot blasting stream for consistent cleaning. When the blasting process finishes, the machine stops automatically allowing the unloading of the parts to take place. Then, the operator moves the belt in the reverse direction to prepare the machine for a new load.
|
Item |
Name |
QTY |
Technical parameters |
Remarks |
|
1 |
Cleaning capacity |
1 |
¡Ü0.3m3 and ¡Ü600Kg |
Quantity/times |
|
2 |
Required workpiece |
|
Unit weight of workpiece: ¡Ü30Kg, L¡Ü500mm, t¡Ý10mm, 10mm¡Ü¡Ó¡Ü300mm |
Temperature¡Ü80¡æ |
|
3 |
Cleaning room |
1 |
1822B¡Á1825L¡Á2300Hmm£¨max£© |
|
|
4 |
Blasting wheel |
1 |
Blasting volume: 220Kg/min Projection speed: 61m/s |
Transmission method£ºbelt transmission motor power:11kw |
|
5 |
Elevator |
1 |
Model: TS-15 Elevating quantity: 15t/h |
Power: 2.2kw |
|
6 |
Separator |
1 |
Model: FL-15 wind speed: 4-5m/min |
Full curtain wind choice Separate result£¾99% |
|
7 |
Shot gate |
1 |
|
Cylinder control |
|
8 |
Screw conveyor |
1 |
Delivery quantity: 15t/h |
Share the reducer with elevator |
|
9 |
Belt loading system |
1 |
End plate diameter: ¡Ó1000mm Belt aperture: ¡Ó8mm |
Reducer power: 1.5kw Belt format: with character rubber belt |
|
10 |
Dust collector |
1 |
Ventilation: 3500m3/h |
Blower power: 2.2KW Vibration motor power: 0.55KW |
|
11 |
Bucket loading system |
1 |
Rise-fall speed: 6m/min |
Power: 3KW |
|
11 |
Total power |
|
¡«20.45KW |
Voltage: (optainol) |
|
12 |
Metal abrasive for first time |
|
¡«600Kg |
Buyer need to buy extra |
|
13 |
Compressed air |
|
Air pressure: 0.4¡«0.6MPa |
Consumption: 0.1 m3/min£¨buyer is responsible for this£© |
|
14 |
Dust emission |
According to GB16297-1996 |
||
|
15 |
The noise of equipment |
According to JB/T7459.1-1999< |
||




























