Marine Explosion-proof Fire Damper
[Search Related Products]
Application:
The fire damper is mainly used in the air duct of ventilation and air conditioning system. It is usually in the 'normally open' state. When the air temperature reaches 70¡æ, it is automatically closed by the action of the fuse in the air valve. Widely used in various types of passenger ships, cargo ships, naval vessels and offshore oil platforms and other ventilation pipes.
Advantages:
Small deformation, low air leakage, good reliability, etc.
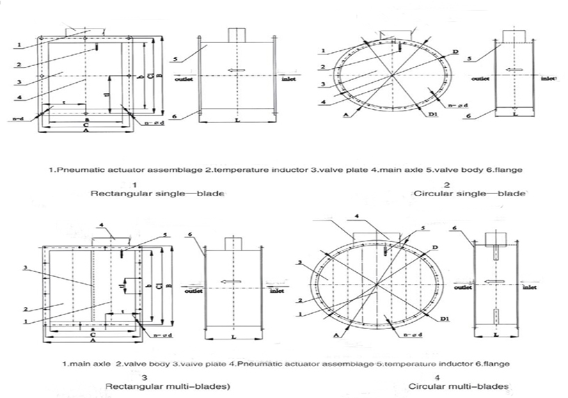
Outline Drawing:
Picture of Marine Explosion-proof Fire Damper

Certificates





















