JIS F2804 Cross Bitt Bollard
[Search Related Products]
Features of Jis F2804 Cross Bitt Bollard
1. Ship cross bitt bollard;
2. Standard: JIS F2804-76;
3. Material: casting steel;
4. Nominal Diameters: 150mm,200mm,250mm,300mm,350mm;
5. Weight: 33 to 186kg;
6. Safe Working Load: 25T to 90T;
7. Specific dimension,material, surface coating etc. are optional;
8. One year quality warranty;
Customized bollards is available
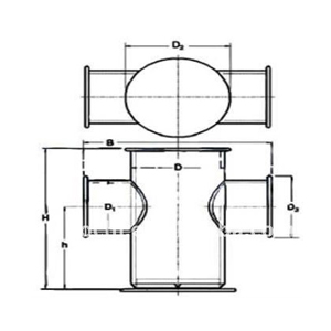
Drawing of JIS F2804 Cross Bollard type B
JIS F2804 Cross Bitt Bollard
|
Nominal Dia.(mm) |
Dimension(mm) |
Hemp. Rope Dia.(mm) |
Wire Rope Dia.(mm) |
|||||||
|
H |
h |
B |
D |
D1 |
D2 |
D3 |
Weight(kg) |
|||
|
150 |
480 |
280 |
460 |
165 |
114 |
206 |
158 |
33 |
45 |
16 |
|
200 |
560 |
320 |
520 |
216 |
165 |
256 |
206 |
60 |
- |
22 |
|
250 |
640 |
360 |
610 |
267 |
216 |
308 |
256 |
102 |
- |
28 |
|
300 |
680 |
380 |
660 |
318 |
267 |
360 |
308 |
154 |
- |
34 |
|
350 |
720 |
420 |
720 |
355 |
267 |
400 |
312 |
186 |
- |
38 |
























































