200 persons Waste Water Treatment Plant
[Search Related Products]
This waste water treatment plant is applicable to treat the sewage, which means human body wastes and the wastes from the toilets on vessels and which is also called ”°black water”±, to meet the effluent standards of IMO MEPC.159£Ø55), and discharge the effluent to overboard. It is also applicable to treat galley & shower drainage which is called ”°grey water”± on condition that the ”°grey water”± should be pretreated or should select a bigger capacity model to match with.
CCS, BV, EC, and GL certificater supply.
Pls send your inquiry to sales7@hiseamarine.com
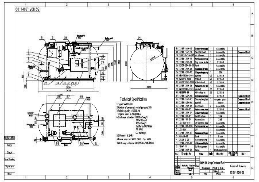
Technical Parameters
| Specification | SWCM-200 | |
| Treated Load | Average (L/D) | 14700 |
| Pinnacle(L/H) | 1838 | |
| Organic Load (kgBOD5/d) | 7.35 | |
| Rated Capacity (Person) | 200 | |
| Max. Capacity (Person) | 210 | |
| Voltage | AC 380V/50HZ/3¦µ, AC440V/60HZ/3¦µ | |
| Power (kw) | 6.0 | |
| Size (mm) (L*W*H) | 3630*2200*2350 | |
| Weight | Dry (kg) | 3000 |
| Wet (kg) | 13267 | |
| Effluent standard | BOD5 25mg/L ”Ū, COD”Ū125mg/L, TSS”Ū35mg/L, coliform”Ū100/100ml, PH6”«8.5, CL2”Ū0.5mg/L | |



























