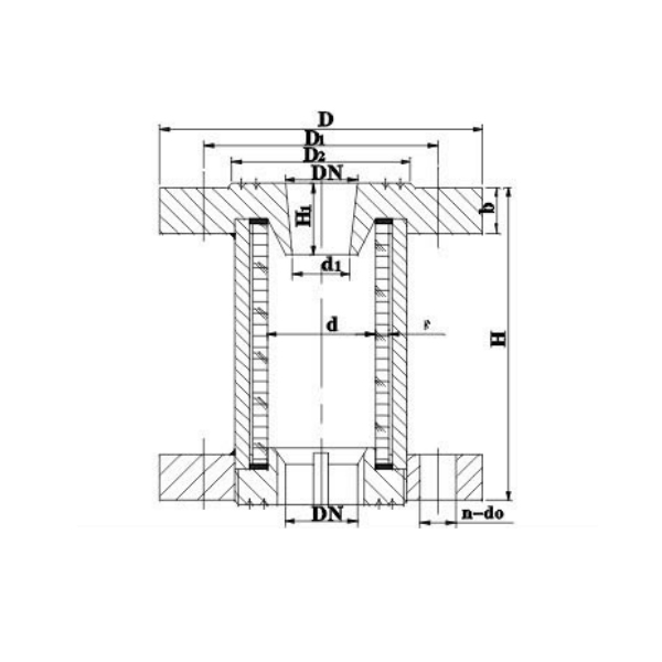
T type Marine Fluid Watching Machine
[Search Related Products]
Details:
The fluid watching machine J type it ca be used in sea water, fresh water, oil (not includingheavy oil).
Materials:
- Body: Cast Iron;
- Transparent board: Ordinary glass;
- Transparent Pipe: Plexiglass;
- Cover: Cast tin bronze;
- Cover Board: Carbon steel.
Elementary Dimensions:
Drawing:
















