Marine Tube Type Level Gauge
[Search Related Products]
Marine Tube Type Level Gauge
1. Brief Introduction:
Marine tube type level gauge is called oil level gauge. It is widely used for all kinds of marine oil tanks and water tanks.
2. Parameter List:
|
Type |
Nominal Pressure PN(Mpa) |
Nominal Diameter DN |
Working Pressure (Mpa)/Medium Temp. £¼120 ¡æ |
Working Pressure/Medium Temp. £¾120-200¡æ |
Medium |
|
A1 |
0.1 |
10 |
0.1 |
0.1 |
Oil (Except heavy oil) |
|
B1 |
0.1 |
10 |
0.1 |
0.1 |
Oil (Except heavy oil) |
|
C1 |
0.1 |
10 |
0.1 |
0.1 |
Oil (Except heavy oil) |
|
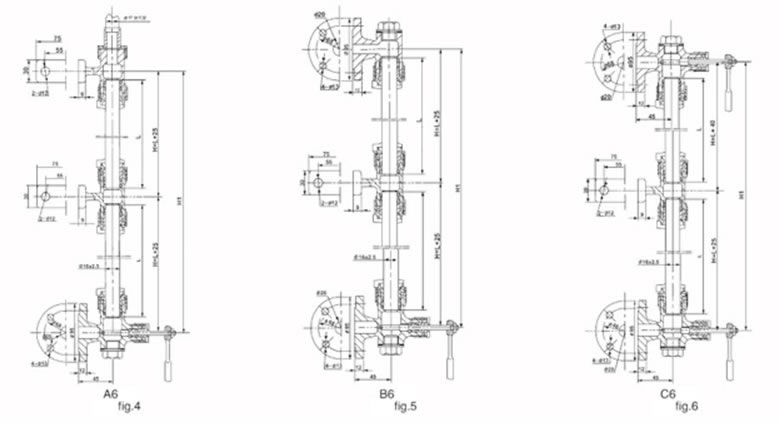
A6 |
0.6 |
10 |
0.6 |
0.5 |
Oil (Except heavy oil), Water |
|
B6 |
0.6 |
10 |
0.6 |
0.5 |
Oil (Except heavy oil), Water |
|
C6 |
0.6 |
10 |
0.6 |
0.5 |
Oil (Except heavy oil), Water |
3. Marine Tube Type Level Gauge Boot cap.









