Marine Mushroom Vents
[Search Related Products]
Introduction:
This standard CB/T295-2000 Marine fungus ventilator is applicable to the design, manufacture and acceptance of the ventilator installed on the open deck of Marine vessels.
It has the characteristics of beautiful shapes, complete types, reliable obturation, reasonable structure convenience on-off, etc.
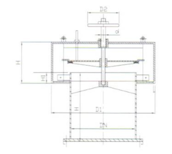
Drawing:
Picture of Marine Mushroom Vents:

































