Electric Fluorine Control Ball Valve
[Search Related Products]

\
| DN | 15 | 20 | 25 | 32 | 40 | 50 | 65 | 80 | 100 | 125 | 150 | 200 |
| Kv£¨V type£© | 10 | 16 | 25 | 40 | 63 | 100 | 160 | 250 | 400 | 630 | 1000 | 1600 |
| Nominal stroke | 900 | |||||||||||
| Flow characteristic | V type,Approximate precentage | |||||||||||
| Nominal pressure | 1.0£¬1.6 Mpa | |||||||||||
| Adjustable extent | 100:1 | |||||||||||
| Actuator | Electric or Pneumatic | |||||||||||
| Flange standard | JB, ANSI, JIS, DIN | |||||||||||
| Valve body material | ZG230-450+F46£¬ZG1Cr18Ni9Ti+F46 | |
| Valve plate | ZG1Cr18Ni9Ti+F46 | |
| Valve lever | 1Cr18Ni9Ti+F46 | |
| Filling material | Polytetrafluoroethylene | |
| Seal type | Flexible seal | |
| Seal material | Polytetrafluoroethylene | |
| Leakage rate | ¢ô,Zero | |
| Working temperature | -40-180oC | -40-350oC |
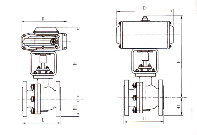
| DN | 15 | 20 | 25 | 32 | 40 | 50 | 65 | 80 | 100 | 125 | 150 | 200 | 250 | 300 | |
| L(PN1.6 Mpa) | 130 | 140 | 150 | 165 | 180 | 200 | 220 | 250 | 280 | 320 | 360 | 400 | 450 | 520 | |
| H1 | 50 | 55 | 60 | 70 | 75 | 85 | 95 | 105 | 115 | 125 | 140 | 170 | 205 | 230 | |
| GTX | H | 306 | 308 | 320 | 350 | 370 | 380 | 410 | 420 | 555 | 660 | 724 | 774 | 885 | 950 |
| D | 222 | 294 | 300 | 380 | 450 | 603 | 683 | 720 | |||||||
| UNIC | H | 275 | 280 | 290 | 330 | 340 | 400 | 460 | 535 | 640 | 690 | 750 | 795 | 840 | |
| D | 157 | 207 | 256 | 380 | 420 | ||||||||||
































